Plot 23

The Larch

4 Bedroom Detached House with Integral Single Garage

£369,995
133.2m2 / 1434sq ft
Council Tax Band: F
EPC Rating: B

Discover Your Dream Home at Kinion Heights, Aberdeen

This is a beautiful family home which benefits from an open concept dining kitchen and a separate living room. The kitchen has plenty of storage and work surfaces and includes premium appliances plus French doors leading out to your private garden. Off the kitchen you’ll find a separate utility room with a door also leading into the garden for ease. In the hall, there is plenty of handy storage.

Upstairs, there are four large bedrooms and a beautiful family bathroom with bath and separate shower. Within the master bedroom you’ll find a walk-in wardrobe and en-suite bathroom with large luxury shower, finished with designer wall tiling. There is also an integral garage with internal door access.

Uncover Exclusive Offers Tailored Just for You at Kinion Heights

Ask about our range of incentives to help you move. Discover how you can benefit from our special promotions and find your perfect home today! T’s & C’s apply.

Floor Plan & Dimensions

Discover the essential features of this home.

  • Floor Plan
  • Dimensions

    Ground Floor
    Living Room 3.53m x 4.90m or 10′ 11″ x 16′ 0″
    Kitchen/Dining 6.86m x 4.00m or 22′ 6″ x 13′ 1″
    Utility 1.92m x 2.44m or 6′ 3″ x 8′ 0″
    WC 1.87m x 1.39m or 6′ 1″ x 4′ 6″
    Garage 3.07m x 6.00m or 10′ 0″ x 19′ 8″

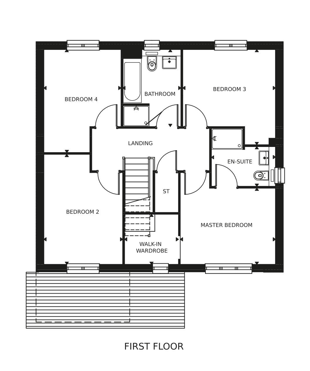
    First Floor
    Master Bedroom 3.63m x 3.51m or 11′ 10″ x 11′ 6″
    En-suite 2.44m x 2.20m or 8′ 0″ x 7′ 2″
    Walk-in Wardrobe 2.04m or x 1.90m 6′ 8″ x 6′ 2″
    Bedroom 2 3.00m x 4.20m or 9′ 10″ x 13′ 9″
    Bedroom 3 3.54m x 3.60m or 11′ 7″ x 11’9″
    Bedroom 4 2.94m x 3.90m or 9′ 7″ x 12′ 9″
    Bathroom 2.20m x 2.94m or 7′ 2″ x 9′ 7″

Ground Floor
Living Room 3.53m x 4.90m or 10′ 11″ x 16′ 0″
Kitchen/Dining 6.86m x 4.00m or 22′ 6″ x 13′ 1″
Utility 1.92m x 2.44m or 6′ 3″ x 8′ 0″
WC 1.87m x 1.39m or 6′ 1″ x 4′ 6″
Garage 3.07m x 6.00m or 10′ 0″ x 19′ 8″

First Floor
Master Bedroom 3.63m x 3.51m or 11′ 10″ x 11′ 6″
En-suite 2.44m x 2.20m or 8′ 0″ x 7′ 2″
Walk-in Wardrobe 2.04m or x 1.90m 6′ 8″ x 6′ 2″
Bedroom 2 3.00m x 4.20m or 9′ 10″ x 13′ 9″
Bedroom 3 3.54m x 3.60m or 11′ 7″ x 11’9″
Bedroom 4 2.94m x 3.90m or 9′ 7″ x 12′ 9″
Bathroom 2.20m x 2.94m or 7′ 2″ x 9′ 7″

Features & Specification

Explore the high-specification standard finish of this home. Ask our team about available optional extras and upgrades.

  • Kitchen
    Kitchen

    Kitchen

    Your Symphony kitchen is designed to be stylish and practical, but with luxury extras built in. It comes complete with a range of premium appliances, comprising – multifunction single fan oven, induction hob, extractor hood, integrated fridge freezer, and, where applicable, a dishwasher.

  • Bedrooms
    Bedrooms

    Bedrooms

    Our bedrooms range from beautiful master suites that provide luxurious sanctuaries to spacious and comfortable family bedrooms. In the master you will find oak finish fitted wardrobes and in some homes, an ensuite shower room.

  • Bathrooms
    Bathrooms

    Bathrooms

    Indulge in our beautiful bathrooms and stylish en-suites, with features including:

    – Contemporary white fittings with chrome taps
    – Chrome heated towel rails
    – Quality wall tiles by Porcelanosa

  • Internal Finish
    Internal Finish

    Internal Finish

    We provide you with the perfect blank canvas to personalise your new home with quality oak finish doors and bannisters and modern white satin skirtings, facings and walls.

  • External Finish
    External Finish

    External Finish

    Smart lockblock driveways and turfed front gardens offer a modern finish from the day you get your keys.

Kitchen

Kitchen

Your Symphony kitchen is designed to be stylish and practical, but with luxury extras built in. It comes complete with a range of premium appliances, comprising – multifunction single fan oven, induction hob, extractor hood, integrated fridge freezer, and, where applicable, a dishwasher.

Bedrooms

Bedrooms

Our bedrooms range from beautiful master suites that provide luxurious sanctuaries to spacious and comfortable family bedrooms. In the master you will find oak finish fitted wardrobes and in some homes, an ensuite shower room.

Bathrooms

Bathrooms

Indulge in our beautiful bathrooms and stylish en-suites, with features including:

– Contemporary white fittings with chrome taps
– Chrome heated towel rails
– Quality wall tiles by Porcelanosa

Internal Finish

Internal Finish

We provide you with the perfect blank canvas to personalise your new home with quality oak finish doors and bannisters and modern white satin skirtings, facings and walls.

External Finish

External Finish

Smart lockblock driveways and turfed front gardens offer a modern finish from the day you get your keys.

Make an Appointment